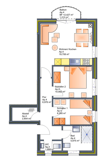
Strandflieder #4
Ihr Urlaub beginnt in geschmackvoll eingerichteten und mit allem Komfort ausgestatteten Appartements
- genießen Sie auf der Terrasse bzw. dem Balkon in bester Südlage ein ausgedehntes Frühstück, die ofenfrischen Brötchen dazu gibt es im Kiosk gegenüber (auch Sonntags!)
- Unseren Hausgästen steht ein Grillplatz zur Verfügung und für die "Kleinen" gibt es auch einen Spielplatz am Haus










